Retour aux réalisations
Façade Centre Bouddhique Trets - perspective 3D
Rénovation
Trets
2026

Projet Rénovation et Conformité ERP à Trets

En livraison — Rénovation du Centre Bouddhique Soka à Trets : sanitaires PMR, cuisine collective, salle de réunion modulable avec mur mobile, mise en conformité SSI et accessibilité. 12 lots, budget 250-300k€ HT.

Budget
200 000 € - 300 000 €
Durée
6 mois
Type
Maison individuelle

Le Projet

Le Centre Bouddhique Soka Européen, situé à Trets (13530) en région PACA, a fait l'objet d'une opération d'envergure menée par PROGINEER. Ce projet visait la rénovation et le réaménagement intérieur de l'établissement, classé Établissement Recevant du Public (ERP) de Type V, 1ère catégorie. Notre mission, sous la maîtrise d'ouvrage du Centre Bouddhique Soka Européen, s'est déroulée d'octobre 2025 à mars 2026.

Contexte et Enjeux

En tant qu'ERP de 1ère catégorie, le Centre Bouddhique Soka Européen est soumis à une réglementation BTP stricte en matière de sécurité incendie, d'accessibilité et d'hygiène. L'objectif principal de cette opération était d'améliorer le confort des usagers, de moderniser les équipements techniques existants et, surtout, de mettre l'ensemble du bâtiment en parfaite conformité avec les normes en vigueur. L'enveloppe budgétaire des travaux s'est établie entre 250 000 € et 300 000 € HT. La classification en ERP 1ère catégorie a rendu obligatoire l'intervention d'un Coordinateur SSI (CSSI) et d'un bureau de contrôle technique, garantissant le respect des exigences légales.

Programme des Travaux

Rez-de-chaussée

Réaménagement de la salle de réunion

Les travaux ont consisté en une restructuration complète de l'espace, incluant la modification des cloisonnements, la pose d'un mur mobile (cloison amovible) pour une modularité optimale, la mise en œuvre de nouveaux revêtements de sol et muraux, ainsi que l'adaptation des réseaux techniques. Les menuiseries extérieures ont également été remplacées pour améliorer les performances énergétiques.

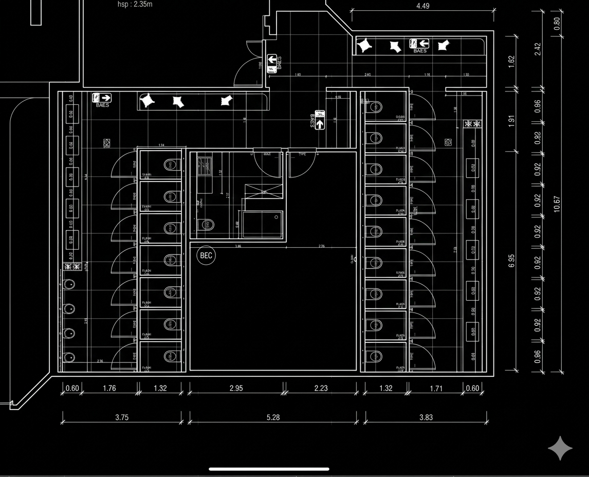
Création d'un sanitaire accessible PMR

Un sanitaire conforme aux exigences d'accessibilité pour les Personnes à Mobilité Réduite (PMR) a été créé, en accord avec l'arrêté du 20 avril 2017 et le Code de la Construction et de l'Habitation. Cette prestation a englobé les travaux de gros œuvre, l'installation d'équipements sanitaires adaptés, des revêtements PMR, un éclairage spécifique et les équipements de sécurité réglementaires.

Réaménagement de la cuisine

L'espace cuisine a été entièrement restructuré pour une redistribution fonctionnelle optimisée. Cela a inclus la mise en place des réseaux d'eau froide, d'eau chaude sanitaire et d'évacuations, ainsi que l'installation de nouveaux équipements et revêtements adaptés à un usage en collectivité.

Sous-sol

Réaménagement des sanitaires

Suite au démantèlement partiel des anciens blocs douches, les surfaces libérées ont permis de concevoir des sanitaires repensés, plus spacieux et plus confortables. La distribution des espaces a été optimisée, en s'appuyant sur les plans DOE du permis de construire existants.

Création d'espaces de stockage

Les volumes dégagés par la démolition des anciens équipements ont été valorisés pour créer des espaces de rangement fonctionnels et adaptés aux besoins du Centre.

Décomposition par Lots

  • LOT 00 : Installation et gestion de chantier
  • LOT 01 : Démolition / Dépose / Curage
  • LOT 02 : Gros œuvre / Maçonnerie
  • LOT 03 : Plâtrerie / Cloisons sèches
  • LOT 04 : Plomberie / Sanitaires
  • LOT 05 : Électricité
  • LOT 06 : SSI — Système de Sécurité Incendie (Siemens, système conventionnel)
  • LOT 07 : Carrelage / Faïence / Revêtements de sols
  • LOT 08 : Peinture
  • LOT 09 : Menuiseries extérieures
  • LOT 10 : Menuiseries intérieures / Mur mobile / Agencement
  • LOT 11 : Signalétique / Sécurité

Mission de Maîtrise d'Œuvre

PROGINEER a assuré une mission complète de maîtrise d'œuvre, englobant les phases suivantes :

  • APD (Avant-projet définitif) : Validation des plans et prestations architecturales et techniques.
  • DCE (Dossier de Consultation des Entreprises) : Constitution des pièces techniques et administratives (CCTP, DPGF par lots).
  • ACT (Analyse des offres) : Négociation et mise au point des marchés avec les entreprises sélectionnées.
  • EXE (Production des plans d'exécution) : Réalisation des études techniques complémentaires (électricité, SSI, plomberie, réseaux d'évacuations).
  • Coordination SSI : Suivi et collaboration étroite avec le coordinateur SSI et le bureau de contrôle.
  • OPC / DET (Direction et surveillance du chantier) : Organisation des réunions hebdomadaires, rédaction des comptes rendus et suivi de l'avancement.
  • AOR (Assistance aux opérations de réception) : Gestion des réserves et accompagnement jusqu'à la livraison finale.

Spécificités Techniques

  • SSI : Mise en conformité du système de sécurité incendie avec l'installation d'un système conventionnel Siemens, sous la coordination d'un CSSI agréé. Production des plans de repérage des zones de détection, plan synoptique SSI et schéma de principe.
  • Plomberie : Remplacement des réseaux ECS/EFS, mise aux normes des évacuations EU/EV (pentes, matériaux, dissociation des réseaux), et désinfection des réseaux ECS conforme à l'arrêté du 1er février 2010 (prévention légionelles).
  • Menuiseries extérieures : Remplacement des menuiseries existantes pour une amélioration significative des performances thermiques et phoniques.
  • Mur mobile : Installation d'une cloison amovible dans la salle de réunion pour une modularité totale des espaces, s'adaptant aux différentes configurations d'usage.
  • Accessibilité PMR : Création d'un sanitaire entièrement conforme aux normes d'accessibilité en vigueur.
  • Qualité documentaire : Production d'un CCTP et d'un DPGF complets et détaillés pour l'ensemble des 12 lots, avec des prescriptions techniques conformes aux DTU et normes NF applicables.

Planning Synthétique

Le projet s'est déroulé selon le calendrier suivant :

  • APD : Octobre – Novembre 2025
  • DCE : Novembre 2025
  • ACT : Novembre – Décembre 2025
  • EXE + Chantier : Décembre 2025 – Février 2026
  • Réception : Février – Mars 2026
  • Livraison : Mars 2026

Pour en savoir plus sur nos réalisations ou pour discuter de votre projet, n'hésitez pas à contacter Progineer ou à demander un devis personnalisé.

Prestations réalisées

  • Avant-projet définitif (APD)
  • Dossier de Consultation des Entreprises (DCE)
  • Analyse des offres entreprises (ACT)
  • Plans d'exécution (EXE)
  • Coordination SSI
  • Direction et surveillance de chantier (OPC / DET)
  • Assistance aux opérations de réception (AOR)

Un projet similaire ?

Discutons ensemble de votre projet. Notre équipe est à votre écoute pour concrétiser vos ambitions.

Démarrer mon projet

Informations

Localisation
Trets
Département
13
Catégorie
Rénovation
Année
2026

Votre projet mérite notre expertise

Chaque réalisation est unique. Discutons ensemble de votre projet pour le concrétiser selon vos attentes.