Aller au contenu principal
Retour aux réalisations
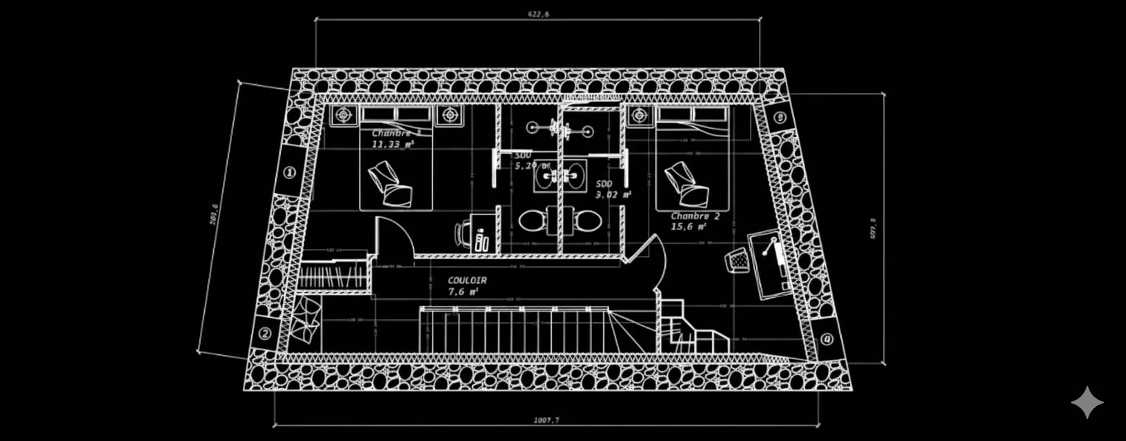
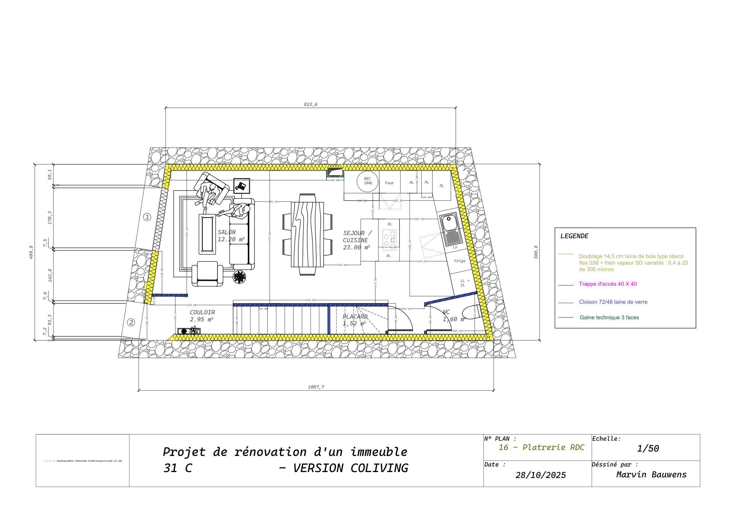
Coupe projet réhabilitation immeuble R+2 - Marseille 1er
Démarrage prochain
Rénovation
Marseille
2025

Réhabilitation immeuble rue Curiol Marseille 1er

En étude — Réhabilitation complète d'un immeuble R+2 de 150 m2 à Marseille 1er : restructuration planchers bois, charpente renforcée, isolation thermique, menuiseries bois, PAC air/air, 2 salles d'eau. Budget 250k€ HT.

Surface
150 m²
Budget
200 000 € - 300 000 €
Type
immeuble

Le contexte du projet

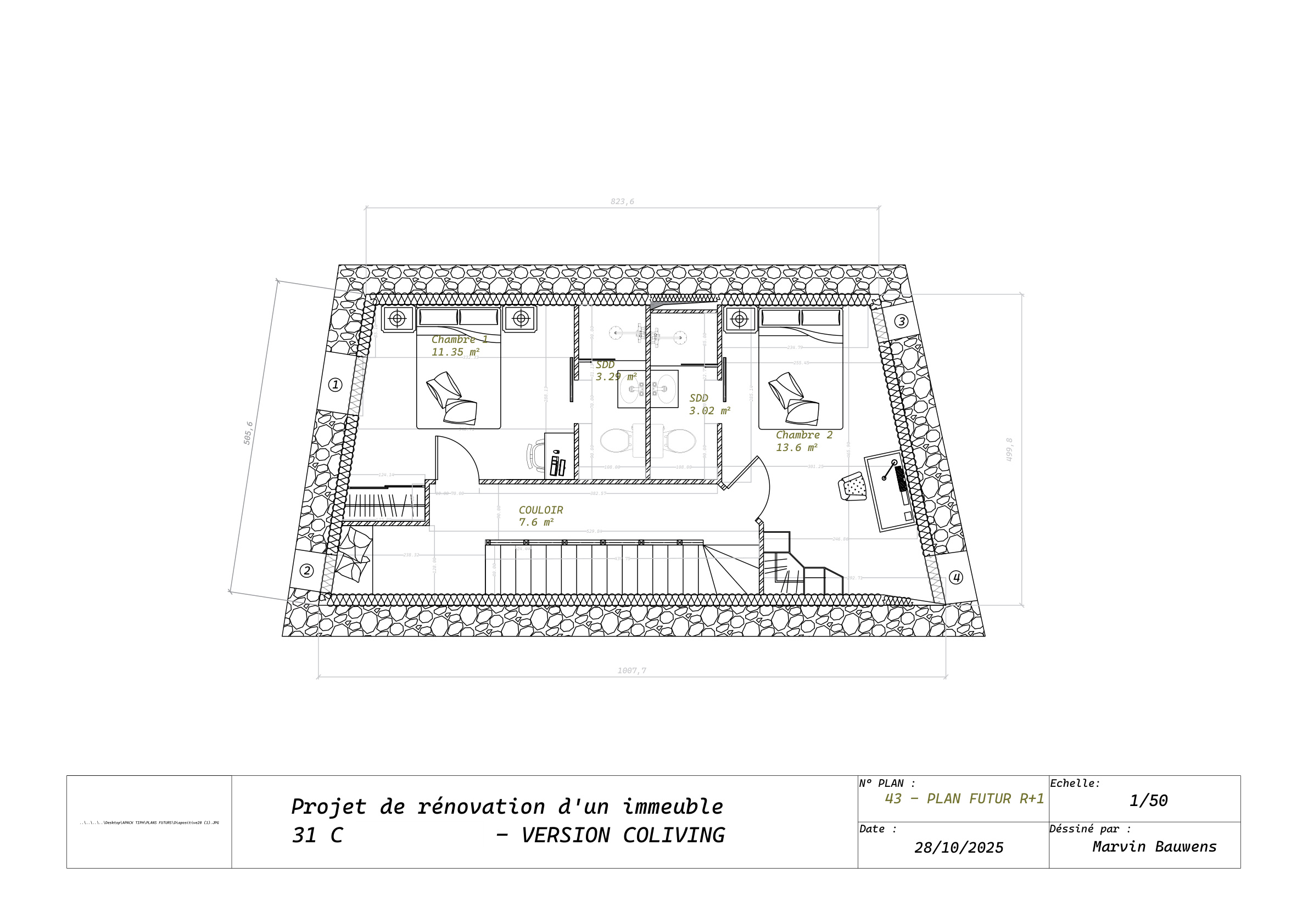
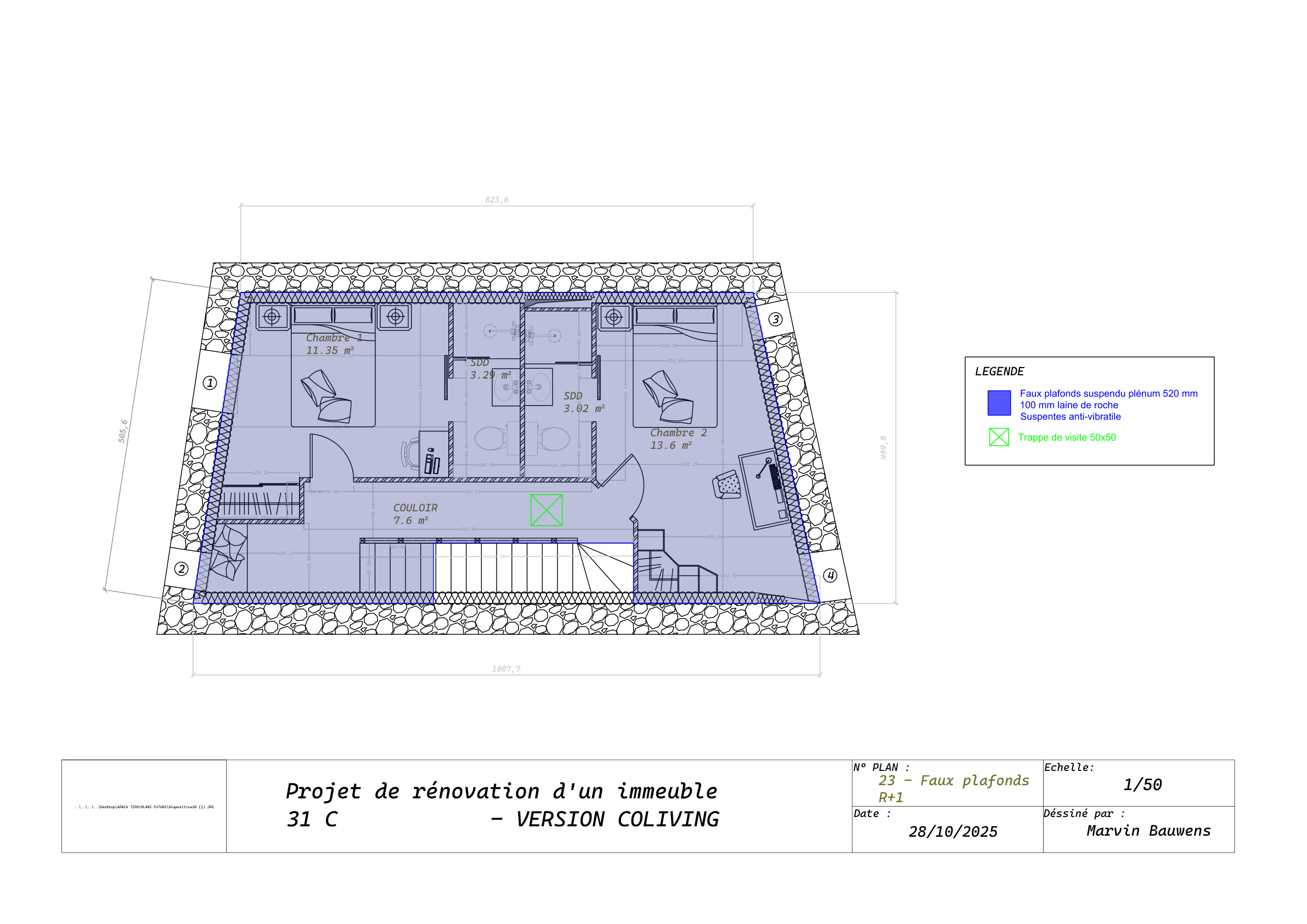
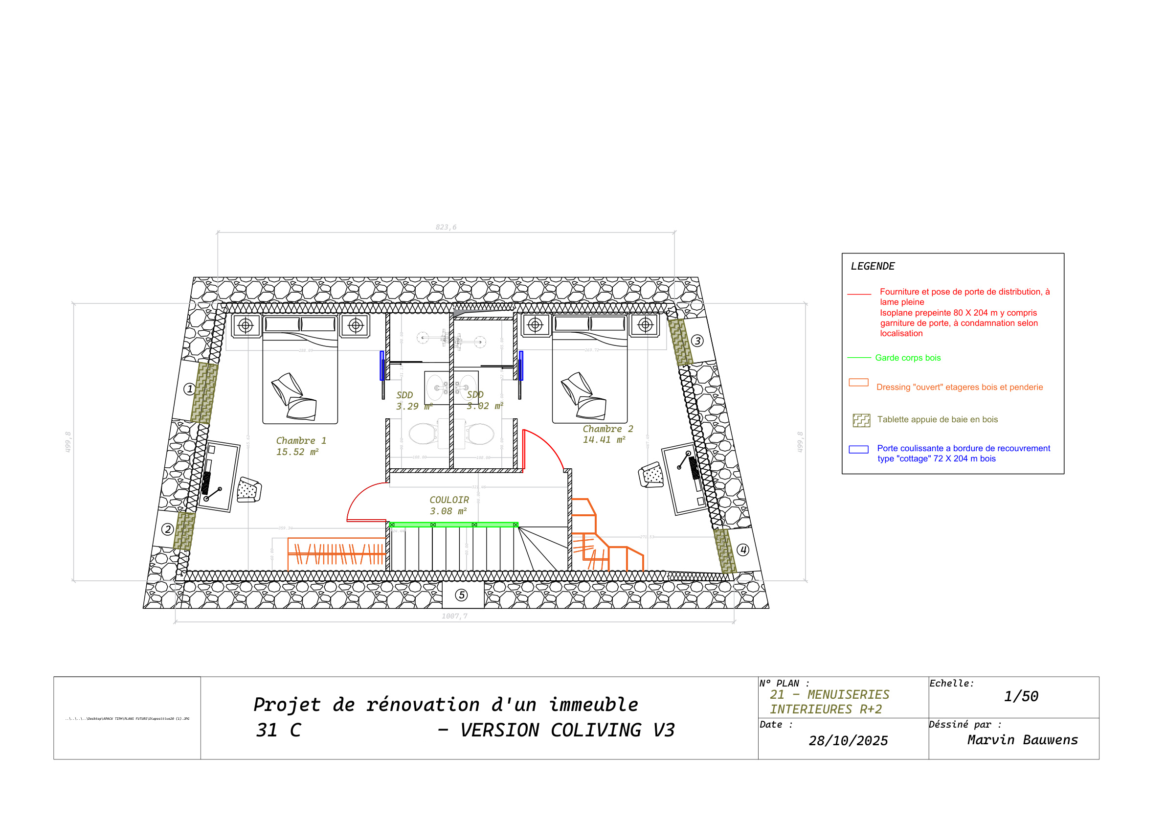
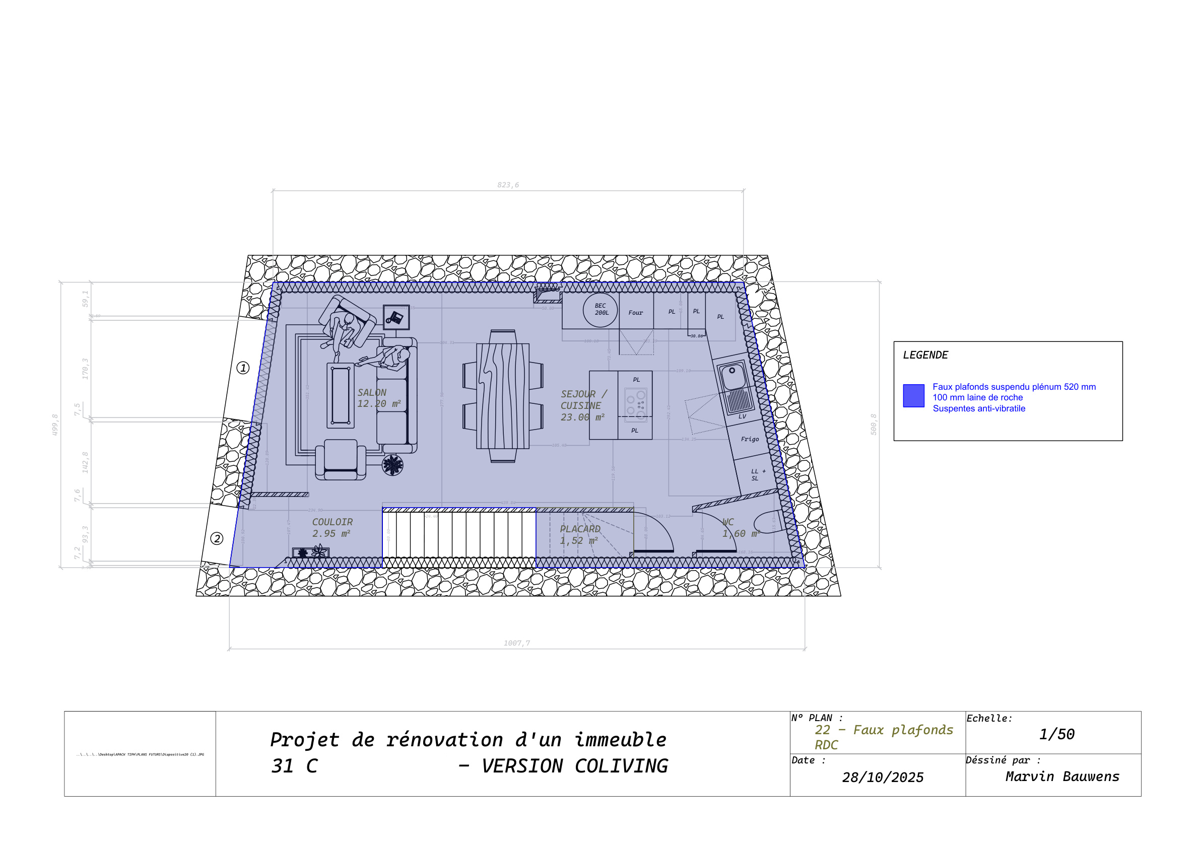
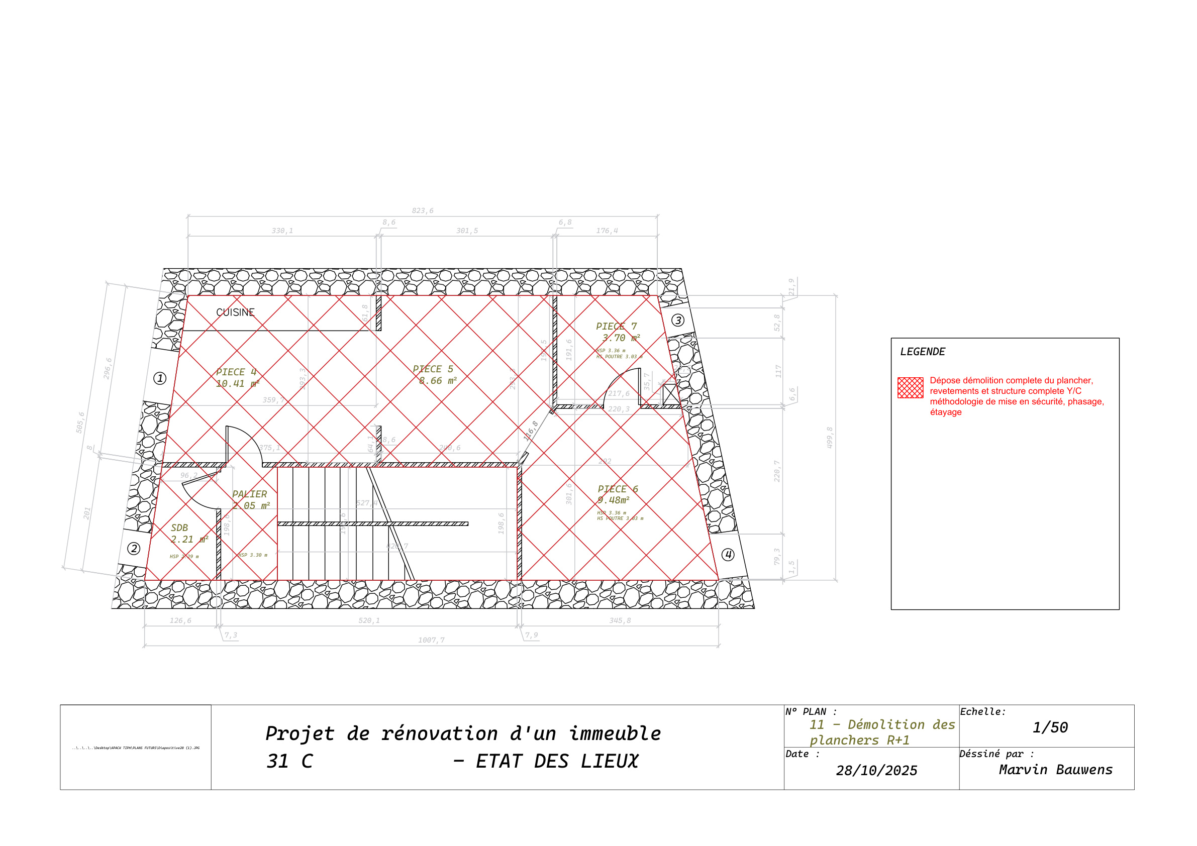
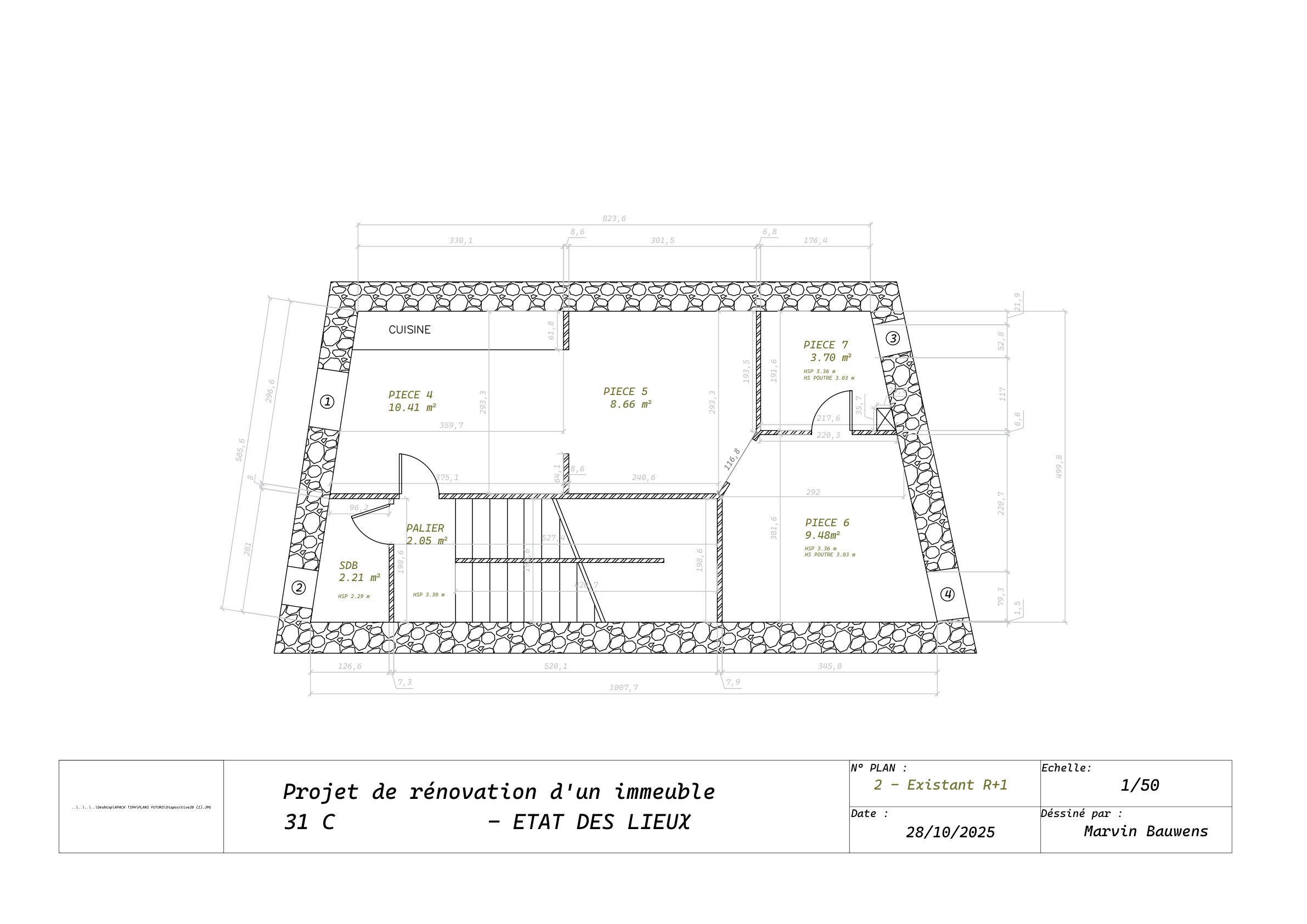
Ce projet, en phase d'étude, porte sur la réhabilitation lourde d'un immeuble d'habitation R+2 d'environ 150 m² situé rue Curiol à Marseille (13001). L'opération vise une restructuration complète du bâti : démolition, reprise de la structure et des planchers bois, rénovation de la charpente traditionnelle, mise aux normes des réseaux et amélioration de la performance énergétique. Le budget prévisionnel est estimé à 250 000 euros HT pour une durée de travaux de neuf mois.

La rue Curiol, au coeur de Marseille

La rue Curiol se situe dans le centre-ville de Marseille, entre le 1er et le 6e arrondissement, à proximité de la Canebière et du quartier Notre-Dame-du-Mont. Ce secteur dense est constitué d'immeubles anciens dont la réhabilitation nécessite une expertise particulière : interventions en site contraint, reprise de structures bois, respect du bâti existant. Progineer maîtrise les spécificités de la réhabilitation du patrimoine marseillais.

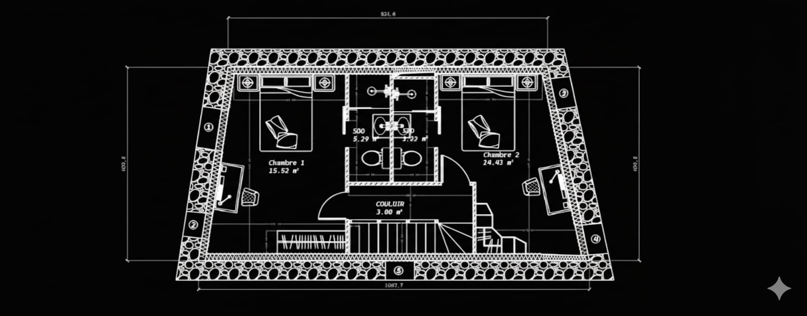
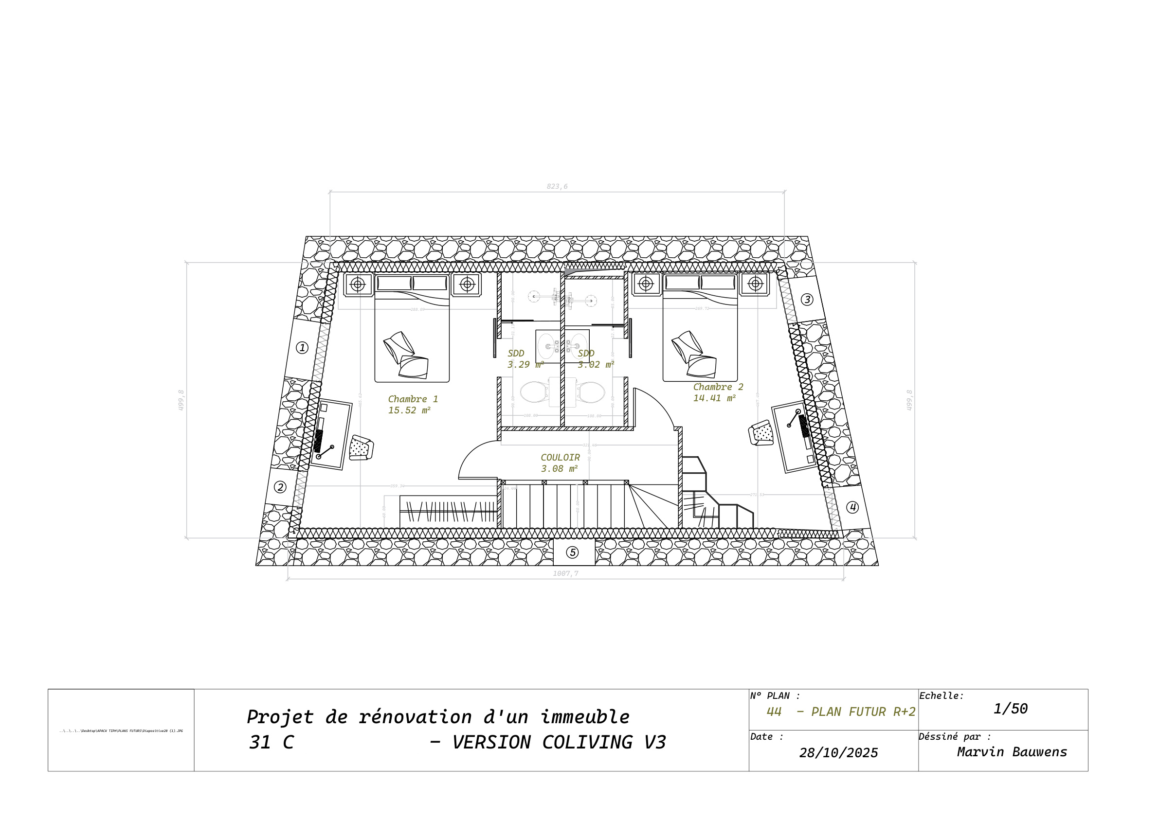
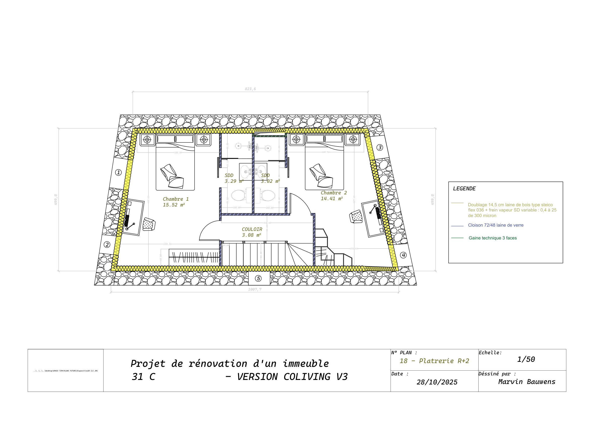
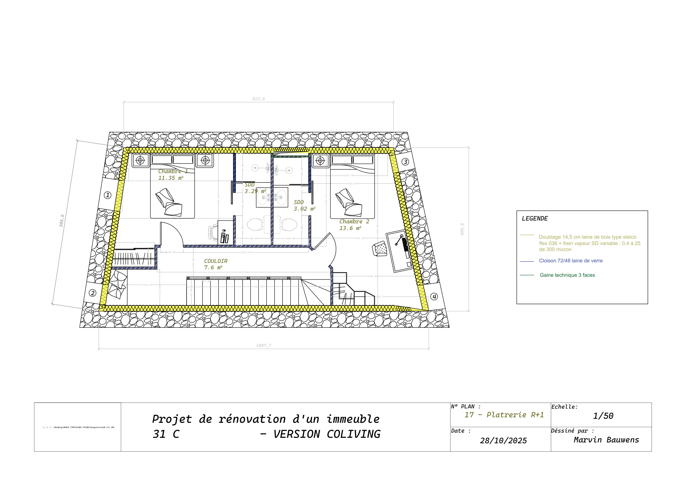
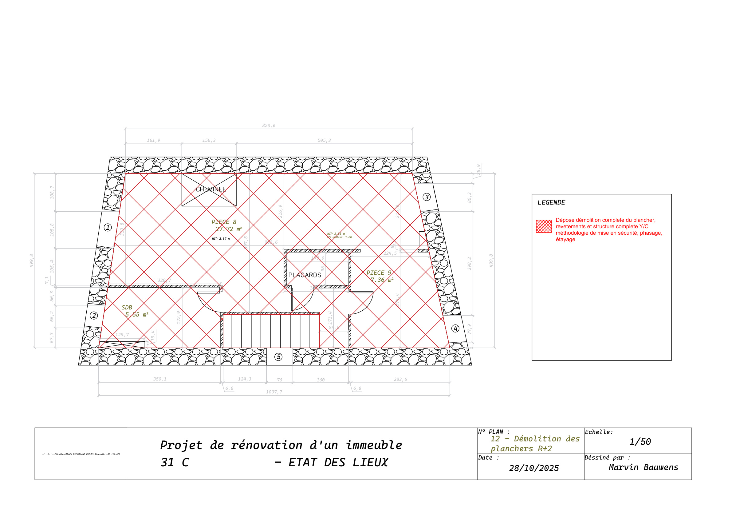
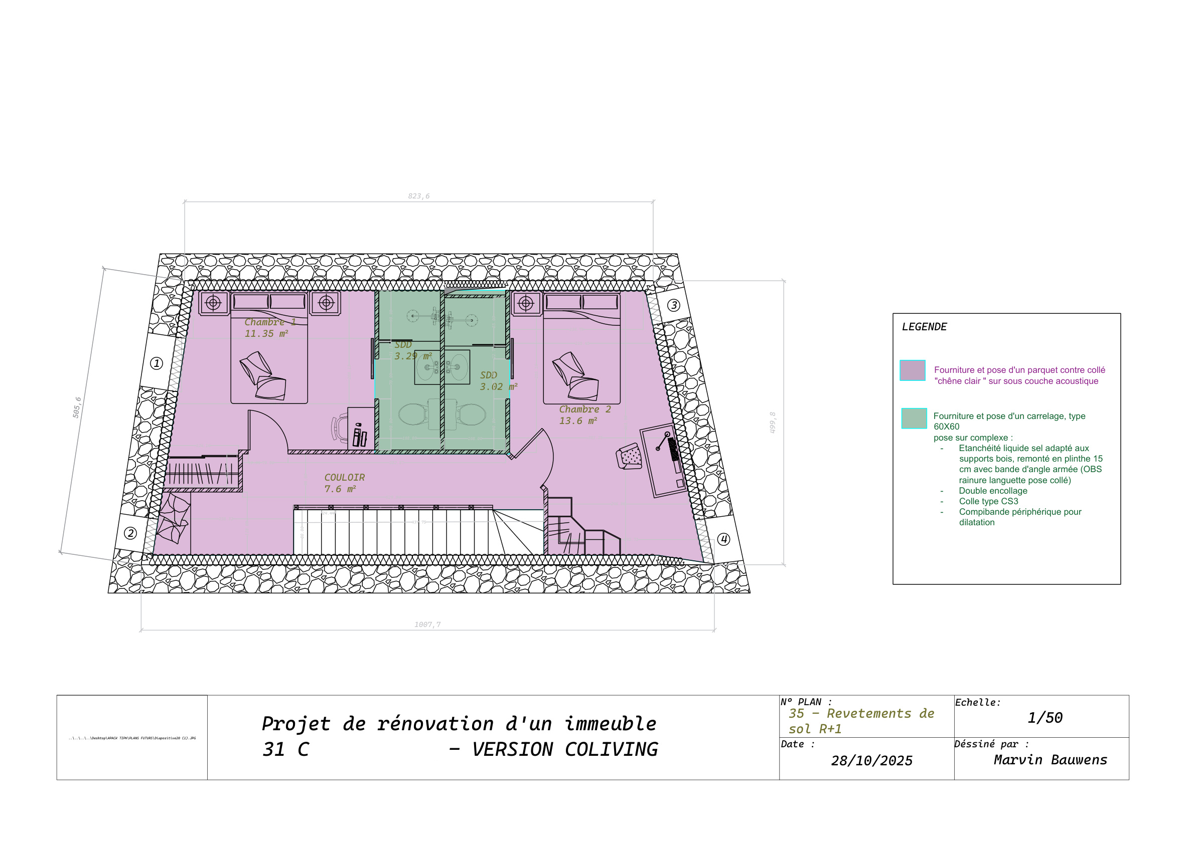
Les caractéristiques techniques de la réhabilitation

  • Démolition complète et reprise de la structure
  • Restructuration des planchers bois et renforcement de la charpente traditionnelle
  • Isolation thermique réglementaire renforcée
  • Menuiseries bois neuves avec porte anti-effraction
  • Installations électriques conformes à la norme NF C 15-100, plomberie et sanitaires complets
  • Chauffage par pompe à chaleur air/air avec climatisation
  • Cloisons, revêtements et peinture

La mission de maîtrise d'oeuvre Progineer

Progineer assure la conception du projet, la réalisation des plans d'exécution et l'estimation financière de l'opération. La réhabilitation d'un immeuble ancien en centre-ville impose une coordination rigoureuse entre les corps d'état structurels et de second oeuvre, ainsi qu'une attention particulière à la reprise des planchers bois et de la charpente. Progineer pilote l'ensemble de ces phases en tant que maître d'oeuvre.

Pourquoi un maître d'oeuvre pour une réhabilitation lourde

La réhabilitation lourde d'un immeuble à Marseille mobilise des compétences techniques étendues : diagnostic de structure, renforcement de charpente, mise aux normes réglementaires et thermiques. Le maître d'oeuvre conçoit, chiffre et coordonne le projet pour sécuriser le budget et les délais. Pour un projet similaire, contactez Progineer ou découvrez notre prestation de réhabilitation.

Prestations réalisées

  • conception
  • plans-execution
  • estimation

Un projet similaire ?

Discutons ensemble de votre projet. Notre équipe est à votre écoute pour concrétiser vos ambitions.

Démarrer mon projet

Informations

Localisation
Marseille
Département
13
Catégorie
Rénovation
Année
2025

Votre projet mérite notre expertise

Chaque réalisation est unique. Discutons ensemble de votre projet pour le concrétiser selon vos attentes.

Thématiques associées

Notre expertise couvre également ces thématiques connexes, sur lesquelles nous accompagnons régulièrement nos clients :

  • réhabilitation immeuble Marseille
  • réhabilitation lourde Marseille 1er
  • maître d'œuvre rue Curiol
  • rénovation immeuble ancien Marseille
  • reprise planchers bois